Top.Mail.Ru

Коптевская ул., д. 26, к. 1

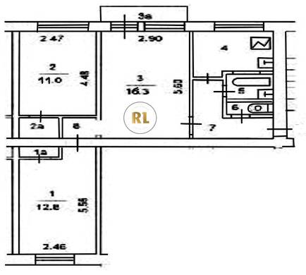
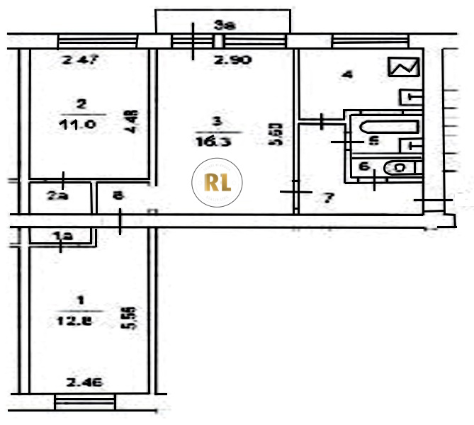
База каталог, Кол-во подъездов: 4, Отсутствует, I-511, Москва, Коптево, Площадь парковки: 0, Пассажирский лифт: 0, От метро: 590, Северный, нет, Наименьшее кол-во этажей: 5, Наибольшее кол-во этажей: 5, Коптево, Кол-во помещений: 66, Кол-во нежилых помещений: 7, Год ввода в эксплуатацию: 1953, 3-комн, Кол-во жилых помещений: 59, С, дом 26, корпус 1, да, да, да, да, да, да, Отсутствует, Грузовых лифтов: 0, Год постройки: 1953, Коптевская улица, 37.522019, 55.835513
Свяжитесь со мной на счет цены
10 дн.
T55S835513L37S522019T

На карте


Условия сделки

Источник


Старт продаж

Возможно заинтересует