Top.Mail.Ru

Коптевская ул., д. 28, к. 1

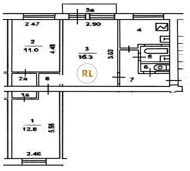
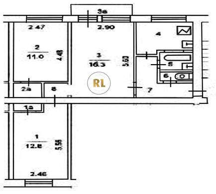
База каталог, Кол-во подъездов: 1, Отсутствует, I-511, Москва, Коптево, Площадь парковки: 0, Пассажирский лифт: 0, От метро: 570, Северный, нет, Наименьшее кол-во этажей: 4, Наибольшее кол-во этажей: 4, Коптево, Кол-во помещений: 16, Кол-во нежилых помещений: 0, Год ввода в эксплуатацию: 1956, 3-комн, Кол-во жилых помещений: 16, С, дом 28, корпус 1, да, да, да, да, да, да, Отсутствует, Грузовых лифтов: 0, Год постройки: 1956, Коптевская улица, 37.522980, 55.835710
Свяжитесь со мной на счет цены
10 дн.
T55S835710L37S522980T

На карте


Условия сделки

Источник


Старт продаж

Возможно заинтересует