Top.Mail.Ru

Коптевская ул., д. 28, к. 3

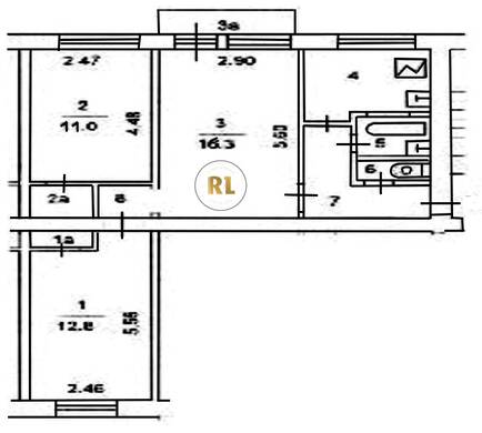
База каталог, Кол-во подъездов: 4, Отсутствует, I-511, Москва, Коптево, Площадь парковки: 0, Пассажирский лифт: 0, От метро: 450, Северный, нет, Наименьшее кол-во этажей: 5, Наибольшее кол-во этажей: 5, Коптево, Кол-во помещений: 72, Кол-во нежилых помещений: 4, Год ввода в эксплуатацию: 1963, 3-комн, Кол-во жилых помещений: 68, С, дом 28, корпус 3, да, да, да, да, да, да, Отсутствует, Грузовых лифтов: 0, Год постройки: 1963, Коптевская улица, 37.522126, 55.836201
Свяжитесь со мной на счет цены
10 дн.
T55S836201L37S522126T

На карте


Условия сделки

Источник


Старт продаж

Возможно заинтересует