Top.Mail.Ru

бульвар Матроса Железняка, д. 31, к. 1

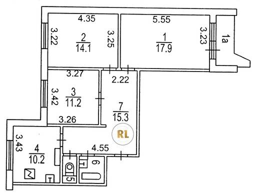
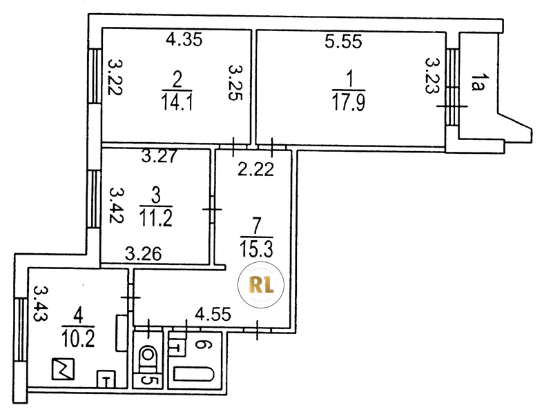
База каталог, Кол-во подъездов: 2, П-44, Москва, Коптево, Площадь парковки: 0, Пассажирский лифт: 2, От метро: 830, Северный, нет, Наименьшее кол-во этажей: 17, Наибольшее кол-во этажей: 17, Коптево, Кол-во помещений: 138, Кол-во нежилых помещений: 5, Год ввода в эксплуатацию: 2004, 3-комн, Кол-во жилых помещений: 133, В, дом 31, корпус 1, нет, да, да, да, да, да, Грузовых лифтов: 2, Год постройки: 2004, бульвар Матроса Железняка, 37.530238, 55.836777
Свяжитесь со мной на счет цены
10 дн.
T55S836777L37S530238T

На карте


Условия сделки

Источник


Старт продаж

Возможно заинтересует