Top.Mail.Ru

Коптевская ул., д. 83, к. 1

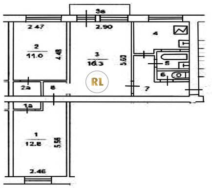
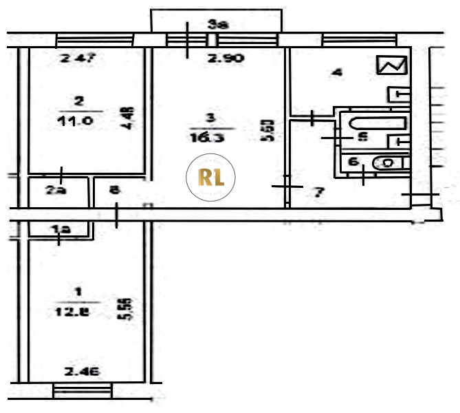
База каталог, Кол-во подъездов: 3, Отсутствует, I-511, Москва, Коптево, Площадь парковки: 0, Пассажирский лифт: 0, От метро: 420, Северный, нет, Наименьшее кол-во этажей: 5, Наибольшее кол-во этажей: 5, Коптево, Кол-во помещений: 45, Кол-во нежилых помещений: 3, Год ввода в эксплуатацию: 1954, 3-комн, Кол-во жилых помещений: 42, С, дом 83, корпус 1, да, да, да, да, да, да, Отсутствует, Грузовых лифтов: 0, Год постройки: 1954, Коптевская улица, 37.520635, 55.836853
Свяжитесь со мной на счет цены
10 дн.
T55S836853L37S520635T

На карте


Условия сделки

Источник


Старт продаж

Возможно заинтересует