Top.Mail.Ru

бульвар Матроса Железняка, д. 33, к. 1

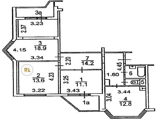
База каталог, Кол-во подъездов: 3, П-44T, Москва, Коптево, Площадь парковки: 0, Пассажирский лифт: 6, От метро: 750, Северный, нет, Наименьшее кол-во этажей: 14, Наибольшее кол-во этажей: 14, Коптево, Кол-во помещений: 162, Кол-во нежилых помещений: 0, Год ввода в эксплуатацию: 2003, 3-комн, Кол-во жилых помещений: 162, А, дом 33, корпус 1, нет, да, да, да, да, да, Грузовых лифтов: 0, Год постройки: 2003, бульвар Матроса Железняка, 37.530562, 55.837227
Свяжитесь со мной на счет цены
10 дн.
T55S837227L37S530562T

На карте


Условия сделки

Источник


Старт продаж

Возможно заинтересует