Top.Mail.Ru

проезд Черепановых, д. 16

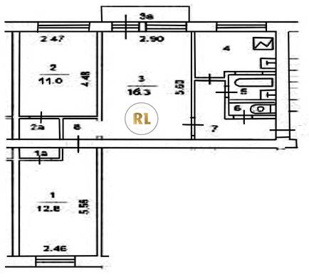
База каталог, Кол-во подъездов: 3, Отсутствует, I-511, Москва, Коптево, Площадь парковки: 0, Пассажирский лифт: 0, От метро: 480, Северный, нет, Наименьшее кол-во этажей: 5, Наибольшее кол-во этажей: 5, Коптево, Кол-во помещений: 60, Кол-во нежилых помещений: 0, Год ввода в эксплуатацию: 1960, 3-комн, Кол-во жилых помещений: 60, С, дом 16, да, да, да, да, да, да, Отсутствует, Грузовых лифтов: 0, Год постройки: 1960, проезд Черепановых, 37.517832, 55.837257
Свяжитесь со мной на счет цены
10 дн.
T55S837257L37S517832T

На карте


Условия сделки

Источник


Старт продаж

Возможно заинтересует