Top.Mail.Ru

Коптевская ул., д. 89, к. 8

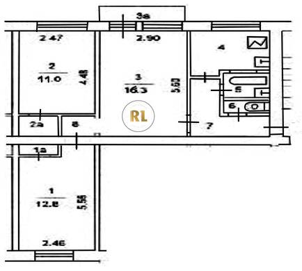
База каталог, Кол-во подъездов: 4, Отсутствует, I-511, Москва, Коптево, Площадь парковки: 0, Пассажирский лифт: 0, От метро: 380, Северный, нет, Наименьшее кол-во этажей: 5, Наибольшее кол-во этажей: 5, Коптево, Кол-во помещений: 80, Кол-во нежилых помещений: 0, Год ввода в эксплуатацию: 1959, 3-комн, Кол-во жилых помещений: 80, С, дом 89, корпус 8, да, да, да, да, да, да, Отсутствует, Грузовых лифтов: 0, Год постройки: 1959, Коптевская улица, 37.519054, 55.837358
Свяжитесь со мной на счет цены
10 дн.
T55S837358L37S519054T

На карте


Условия сделки

Источник


Старт продаж

Возможно заинтересует