Top.Mail.Ru

Большая Академическая ул., д. 53А

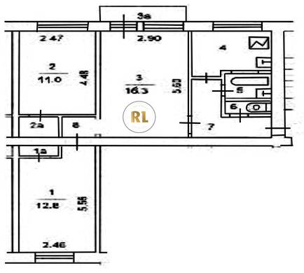
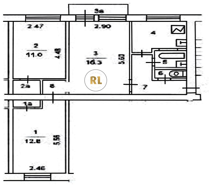
База каталог, Кол-во подъездов: 4, I-511, Москва, Коптево, Площадь парковки: 0, Пассажирский лифт: 0, От метро: 1420, Северный, нет, Наименьшее кол-во этажей: 5, Наибольшее кол-во этажей: 5, Коптево, Кол-во помещений: 80, Кол-во нежилых помещений: 2, Год ввода в эксплуатацию: 1962, 3-комн, Кол-во жилых помещений: 78, F, дом 53А, нет, да, да, да, да, нет, Грузовых лифтов: 0, Год постройки: 1962, Большая Академическая улица, 37.541072, 55.838400
Свяжитесь со мной на счет цены
10 дн.
T55S838400L37S541072T

На карте


Условия сделки

Источник


Старт продаж

Возможно заинтересует