Top.Mail.Ru

Большая Академическая ул., д. 55

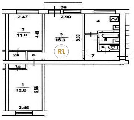
База каталог, Кол-во подъездов: 3, I-511, Москва, Коптево, Площадь парковки: 0, Пассажирский лифт: 0, От метро: 1440, Северный, нет, Наименьшее кол-во этажей: 5, Наибольшее кол-во этажей: 5, Лихоборы, Кол-во помещений: 60, Кол-во нежилых помещений: 0, Год ввода в эксплуатацию: 1959, 3-комн, Кол-во жилых помещений: 60, G, дом 55, нет, да, да, да, да, нет, Грузовых лифтов: 0, Год постройки: 1959, Большая Академическая улица, 37.542590, 55.838445
Свяжитесь со мной на счет цены
10 дн.
T55S838445L37S542590T

На карте


Условия сделки

Источник


Старт продаж

Возможно заинтересует