Top.Mail.Ru

3-й Новомихалковский проезд, д. 7А

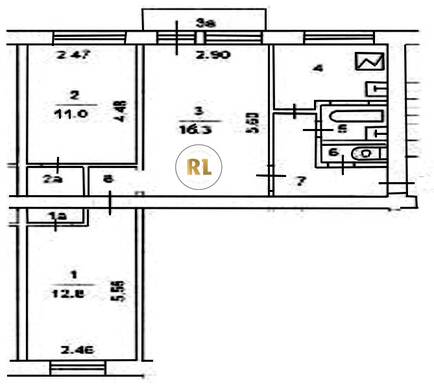
База каталог, Кол-во подъездов: 4, I-511, Москва, Коптево, Пассажирский лифт: 0, От метро: 1360, Северный, да, Наименьшее кол-во этажей: 5, Наибольшее кол-во этажей: 5, Коптево, Кол-во помещений: 81, Кол-во нежилых помещений: 1, Год ввода в эксплуатацию: 1960, 3-комн, Кол-во жилых помещений: 80, F, дом 7А, нет, да, да, да, да, нет, Грузовых лифтов: 0, Год постройки: 1960, 3-й Новомихалковский проезд, 37.540560, 55.838799
Свяжитесь со мной на счет цены
10 дн.
T55S838799L37S540560T

На карте


Условия сделки

Источник


Старт продаж

Возможно заинтересует