Top.Mail.Ru

3-й Новомихалковский проезд, д. 9

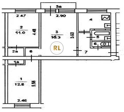
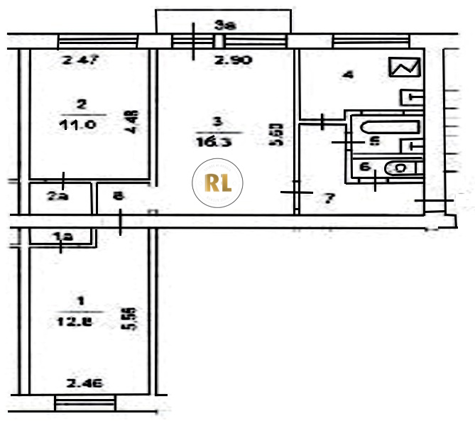
База каталог, Кол-во подъездов: 4, I-511, Москва, Коптево, Площадь парковки: 0, Пассажирский лифт: 0, От метро: 1240, Северный, нет, Наименьшее кол-во этажей: 5, Наибольшее кол-во этажей: 5, Коптево, Кол-во помещений: 69, Кол-во нежилых помещений: 5, Год ввода в эксплуатацию: 1964, 3-комн, Кол-во жилых помещений: 64, F, дом 9, нет, да, да, да, да, нет, Грузовых лифтов: 0, Год постройки: 1964, 3-й Новомихалковский проезд, 37.538628, 55.839037
Свяжитесь со мной на счет цены
10 дн.
T55S839037L37S538628T

На карте


Условия сделки

Источник


Старт продаж

Возможно заинтересует