Top.Mail.Ru

Дмитровское шоссе, д. 32, к. 2

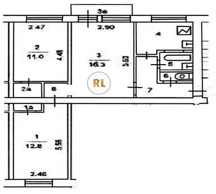
База каталог, Кол-во подъездов: 3, I-511, Москва, Тимирязевский, Площадь парковки: 0, Пассажирский лифт: 0, От метро: 490, Северный, нет, Наименьшее кол-во этажей: 5, Наибольшее кол-во этажей: 5, Петровско-Разумовская, Кол-во помещений: 60, Кол-во нежилых помещений: 0, Год ввода в эксплуатацию: 1960, 3-комн, Кол-во жилых помещений: 60, Не присвоен, дом 32, корпус 2, да, да, да, да, да, да, Грузовых лифтов: 0, Год постройки: 1960, Дмитровское шоссе, 37.574804, 55.839279
Свяжитесь со мной на счет цены
10 дн.
T55S839279L37S574804T

На карте


Условия сделки

Источник


Старт продаж

Возможно заинтересует