Top.Mail.Ru

Лодочная ул., д. 31, стр. 2

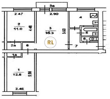
База каталог, Кол-во подъездов: 4, Отсутствует, I-511, Москва, Южное Тушино, Площадь парковки: 197, Пассажирский лифт: 0, От метро: 2220, Северо-Западный, да, Наименьшее кол-во этажей: 5, Наибольшее кол-во этажей: 5, Сходненская, Кол-во помещений: 80, Кол-во нежилых помещений: 0, Год ввода в эксплуатацию: 1966, 3-комн, Кол-во жилых помещений: 80, Не присвоен, дом 31, строение 2, нет, да, да, нет, нет, нет, Имеется, Грузовых лифтов: 0, Год постройки: 1966, Лодочная улица, 37.463637, 55.839552
Свяжитесь со мной на счет цены
10 дн.
T55S839552L37S463637T

На карте


Условия сделки

Источник


Старт продаж

Возможно заинтересует