Top.Mail.Ru

улица Барышиха, д. 6

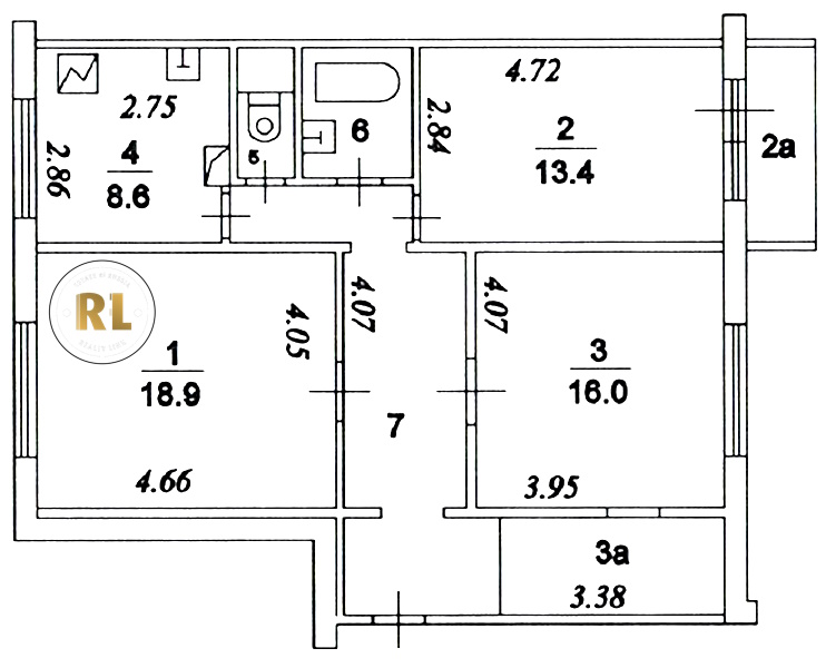
База каталог, Кол-во подъездов: 8, Имеется, П-46, Москва, Митино, Площадь парковки: 0, Пассажирский лифт: 8, От метро: 590, Северо-Западный, нет, Наименьшее кол-во этажей: 5, Наибольшее кол-во этажей: 9, Митино, Кол-во помещений: 170, Кол-во нежилых помещений: 5, Год ввода в эксплуатацию: 1995, 3-комн, Кол-во жилых помещений: 165, Не присвоен, дом 6, да, да, да, да, да, да, Имеется, Грузовых лифтов: 0, Год постройки: 1995, улица Барышиха, 37.366565, 55.840705
Свяжитесь со мной на счет цены
10 дн.
T55S840705L37S366565T

На карте


Условия сделки

Источник


Старт продаж

Возможно заинтересует