Top.Mail.Ru

Лодочная ул., д. 35, стр. 1

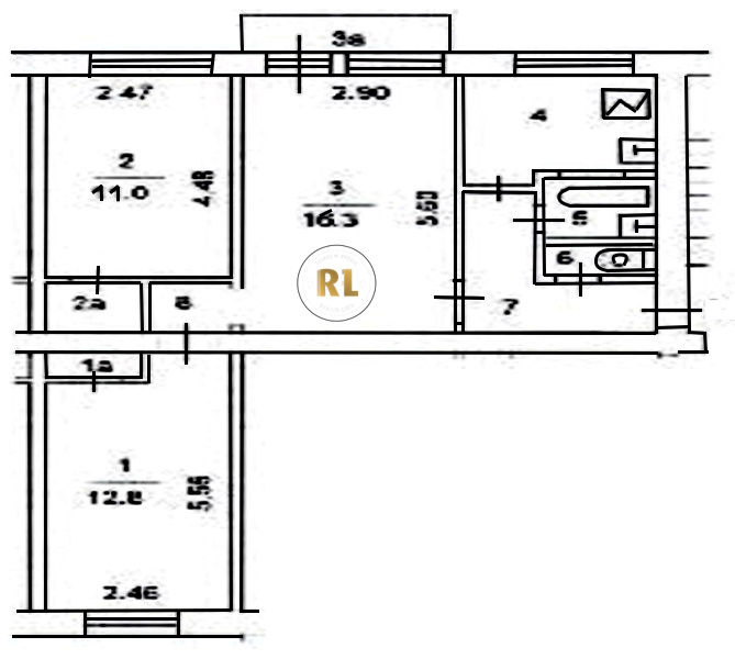
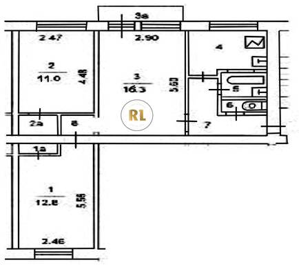
База каталог, Кол-во подъездов: 4, Отсутствует, I-511, Москва, Южное Тушино, Площадь парковки: 135, Пассажирский лифт: 0, От метро: 2100, Северо-Западный, да, Наименьшее кол-во этажей: 5, Наибольшее кол-во этажей: 5, Сходненская, Кол-во помещений: 80, Кол-во нежилых помещений: 0, Год ввода в эксплуатацию: 1965, 3-комн, Кол-во жилых помещений: 80, Не присвоен, дом 35, строение 1, нет, да, да, нет, нет, нет, Имеется, Грузовых лифтов: 0, Год постройки: 1965, Лодочная улица, 37.464104, 55.840780
Свяжитесь со мной на счет цены
10 дн.
T55S840780L37S464104T

На карте


Условия сделки

Источник


Старт продаж

Возможно заинтересует