Top.Mail.Ru

Пятницкое шоссе, д. 13, к. 1

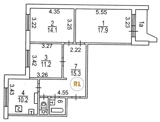
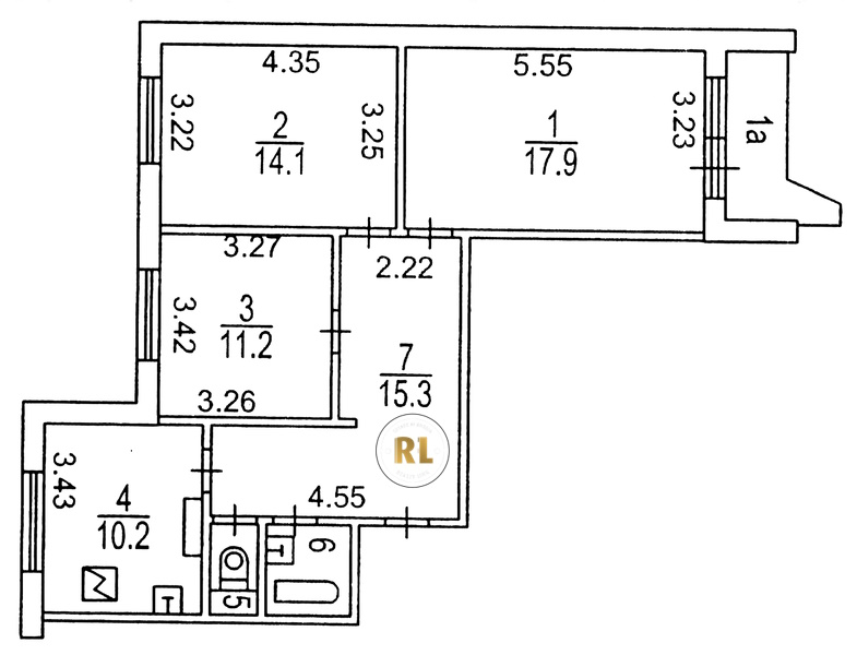
База каталог, Кол-во подъездов: 3, П-44, Москва, Митино, Пассажирский лифт: 3, От метро: 660, Северо-Западный, да, Наименьшее кол-во этажей: 0, Наибольшее кол-во этажей: 17, Волоколамская, Кол-во помещений: 408, Кол-во нежилых помещений: 216, Год ввода в эксплуатацию: 1991, 3-комн, Кол-во жилых помещений: 192, Не присвоен, дом 13, корпус 1, нет, да, да, да, да, да, Грузовых лифтов: 3, Год постройки: 1991, Пятницкое шоссе, 37.381836, 55.840957
Свяжитесь со мной на счет цены
10 дн.
T55S840957L37S381836T

На карте


Условия сделки

Источник


Старт продаж

Возможно заинтересует