Top.Mail.Ru

улица Лихоборские Бугры, д. 3

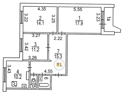
База каталог, Кол-во подъездов: 3, П-44, Москва, Коптево, Площадь парковки: 0, Пассажирский лифт: 3, От метро: 900, Северный, нет, Наименьшее кол-во этажей: 17, Наибольшее кол-во этажей: 17, Лихоборы, Кол-во помещений: 205, Кол-во нежилых помещений: 4, Год ввода в эксплуатацию: 2004, 3-комн, Кол-во жилых помещений: 201, В, дом 3, нет, да, да, да, да, да, Грузовых лифтов: 3, Год постройки: 2004, улица Лихоборские Бугры, 37.547737, 55.841387
Свяжитесь со мной на счет цены
10 дн.
T55S841387L37S547737T

На карте


Условия сделки

Источник


Старт продаж

Возможно заинтересует