Top.Mail.Ru

проезд Черепановых, д. 38, к. 1

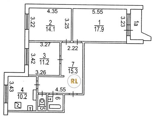
База каталог, Кол-во подъездов: 3, П-44, Москва, Коптево, Пассажирский лифт: 3, От метро: 690, Северный, да, Наименьшее кол-во этажей: 17, Наибольшее кол-во этажей: 17, Коптево, Кол-во помещений: 203, Кол-во нежилых помещений: 0, Год ввода в эксплуатацию: 1999, 3-комн, Кол-во жилых помещений: 203, С, дом 38, корпус 1, нет, да, да, да, да, да, Грузовых лифтов: 3, Год постройки: 1999, проезд Черепановых, 37.530984, 55.841544
Свяжитесь со мной на счет цены
10 дн.
T55S841544L37S530984T

На карте


Условия сделки

Источник


Старт продаж

Возможно заинтересует