Top.Mail.Ru

Лодочная ул., д. 39, стр. 2

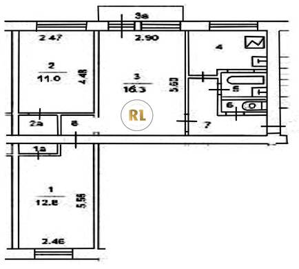
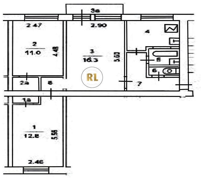
База каталог, Кол-во подъездов: 3, Отсутствует, I-511, Москва, Южное Тушино, Площадь парковки: 184, Пассажирский лифт: 0, От метро: 1910, Северо-Западный, да, Наименьшее кол-во этажей: 5, Наибольшее кол-во этажей: 5, Сходненская, Кол-во помещений: 60, Кол-во нежилых помещений: 0, Год ввода в эксплуатацию: 1966, 3-комн, Кол-во жилых помещений: 60, Не присвоен, дом 39, строение 2, нет, да, да, да, нет, нет, Имеется, Грузовых лифтов: 0, Год постройки: 1966, Лодочная улица, 37.462110, 55.841887
Свяжитесь со мной на счет цены
10 дн.
T55S841887L37S462110T

На карте


Условия сделки

Источник


Старт продаж

Возможно заинтересует