Top.Mail.Ru

улица Лихоборские Бугры, д. 5

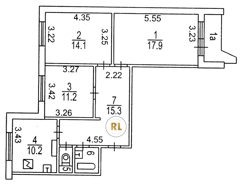
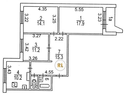
База каталог, Кол-во подъездов: 3, П-44, Москва, Коптево, Площадь парковки: 0, Пассажирский лифт: 3, От метро: 870, Северный, нет, Наименьшее кол-во этажей: 14, Наибольшее кол-во этажей: 14, Лихоборы, Кол-во помещений: 167, Кол-во нежилых помещений: 4, Год ввода в эксплуатацию: 2004, 3-комн, Кол-во жилых помещений: 163, В, дом 5, нет, да, да, да, да, да, Грузовых лифтов: 3, Год постройки: 2004, улица Лихоборские Бугры, 37.547135, 55.842085
Свяжитесь со мной на счет цены
10 дн.
T55S842085L37S547135T

На карте


Условия сделки

Источник


Старт продаж

Возможно заинтересует