Top.Mail.Ru

проезд Досфлота, д. 6

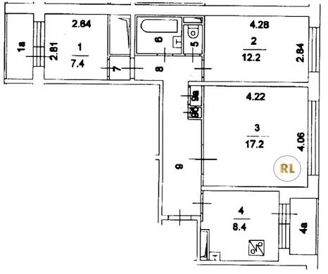
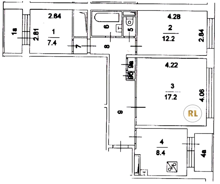
База каталог, Кол-во подъездов: 2, Отсутствует, П-30, Москва, Южное Тушино, Площадь парковки: 501, Пассажирский лифт: 4, От метро: 1710, Северо-Западный, да, Наименьшее кол-во этажей: 14, Наибольшее кол-во этажей: 14, Сходненская, Кол-во помещений: 110, Кол-во нежилых помещений: 0, Год ввода в эксплуатацию: 1990, 3-комн, Кол-во жилых помещений: 110, Не присвоен, дом 6, нет, да, да, да, нет, нет, Имеется, Грузовых лифтов: 0, Год постройки: 1990, проезд Досфлота, 37.458741, 55.842312
Свяжитесь со мной на счет цены
10 дн.
T55S842312L37S458741T

На карте


Условия сделки

Источник


Старт продаж

Возможно заинтересует