Top.Mail.Ru

Онежская ул., д. 2, к. 3

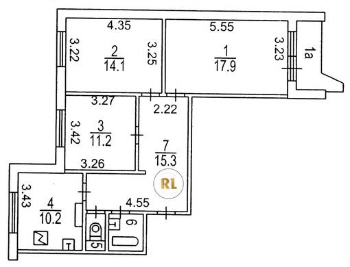
База каталог, Кол-во подъездов: 2, П-44-1/17, Москва, Головинский, Площадь парковки: 0, Пассажирский лифт: 2, От метро: 520, Северный, нет, Наименьшее кол-во этажей: 17, Наибольшее кол-во этажей: 17, Коптево, Кол-во помещений: 130, Кол-во нежилых помещений: 2, Год ввода в эксплуатацию: 1993, 3-комн, Кол-во жилых помещений: 128, E, дом 2, корпус 3, да, да, да, да, да, да, Грузовых лифтов: 2, Год постройки: 1993, Онежская улица, 37.522764, 55.842605
Свяжитесь со мной на счет цены
10 дн.
T55S842605L37S522764T

На карте


Условия сделки

Источник


Старт продаж

Возможно заинтересует