Top.Mail.Ru

улица Барышиха, д. 18

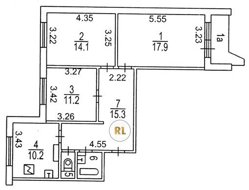
База каталог, Кол-во подъездов: 2, Имеется, П-44, Москва, Митино, Площадь парковки: 0, Пассажирский лифт: 2, От метро: 640, Северо-Западный, нет, Наименьшее кол-во этажей: 17, Наибольшее кол-во этажей: 17, Митино, Кол-во помещений: 135, Кол-во нежилых помещений: 7, Год ввода в эксплуатацию: 1998, 3-комн, Кол-во жилых помещений: 128, Не присвоен, дом 18, нет, да, да, да, да, да, Имеется, Грузовых лифтов: 2, Год постройки: 1998, улица Барышиха, 37.352875, 55.843399
Свяжитесь со мной на счет цены
10 дн.
T55S843399L37S352875T

На карте


Условия сделки

Источник


Старт продаж

Возможно заинтересует