Top.Mail.Ru

Дубравная ул., д. 40

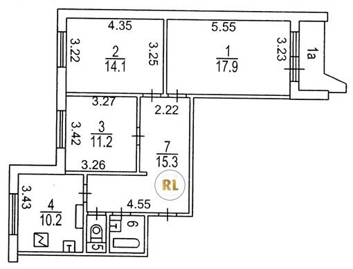
База каталог, Кол-во подъездов: 5, Имеется, П-44, Москва, Митино, Площадь парковки: 0, Пассажирский лифт: 5, От метро: 480, Северо-Западный, нет, Наименьшее кол-во этажей: 17, Наибольшее кол-во этажей: 17, Митино, Кол-во помещений: 332, Кол-во нежилых помещений: 8, Год ввода в эксплуатацию: 1994, 3-комн, Кол-во жилых помещений: 324, Не присвоен, дом 40, да, да, да, да, да, да, Имеется, Грузовых лифтов: 5, Год постройки: 1994, Дубравная улица, 37.354330, 55.843566
Свяжитесь со мной на счет цены
10 дн.
T55S843566L37S354330T

На карте


Условия сделки

Источник


Старт продаж

Возможно заинтересует