Top.Mail.Ru

улица Барышиха, д. 17

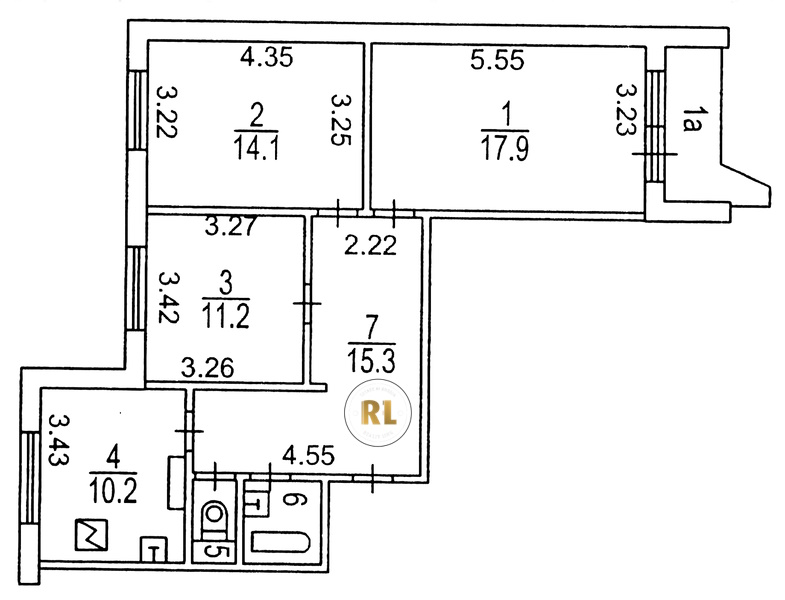
База каталог, Кол-во подъездов: 2, Имеется, П-44, Москва, Митино, Площадь парковки: 0, Пассажирский лифт: 2, От метро: 870, Северо-Западный, нет, Наименьшее кол-во этажей: 17, Наибольшее кол-во этажей: 17, Митино, Кол-во помещений: 138, Кол-во нежилых помещений: 4, Год ввода в эксплуатацию: 1998, 3-комн, Кол-во жилых помещений: 134, Не присвоен, дом 17, нет, да, да, да, да, да, Имеется, Грузовых лифтов: 2, Год постройки: 1998, улица Барышиха, 37.349874, 55.843621
Свяжитесь со мной на счет цены
10 дн.
T55S843621L37S349874T

На карте


Условия сделки

Источник


Старт продаж

Возможно заинтересует