Top.Mail.Ru

улица Барышиха, д. 20

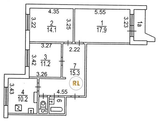
База каталог, Кол-во подъездов: 3, Имеется, П-44, Москва, Митино, Площадь парковки: 0, Пассажирский лифт: 3, От метро: 640, Северо-Западный, нет, Наименьшее кол-во этажей: 17, Наибольшее кол-во этажей: 17, Митино, Кол-во помещений: 197, Кол-во нежилых помещений: 6, Год ввода в эксплуатацию: 1998, 3-комн, Кол-во жилых помещений: 191, Не присвоен, дом 20, нет, да, да, да, да, да, Имеется, Грузовых лифтов: 3, Год постройки: 1998, улица Барышиха, 37.351914, 55.843995
Свяжитесь со мной на счет цены
10 дн.
T55S843995L37S351914T

На карте


Условия сделки

Источник


Старт продаж

Возможно заинтересует