Top.Mail.Ru

улица Барышиха, д. 19

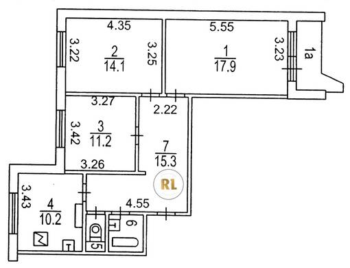
База каталог, Кол-во подъездов: 3, Отсутствует, П-44, Москва, Митино, Площадь парковки: 0, Пассажирский лифт: 3, От метро: 890, Северо-Западный, нет, Наименьшее кол-во этажей: 17, Наибольшее кол-во этажей: 17, Митино, Кол-во помещений: 202, Кол-во нежилых помещений: 4, Год ввода в эксплуатацию: 1998, 3-комн, Кол-во жилых помещений: 198, Не присвоен, дом 19, нет, да, да, да, да, да, Имеется, Грузовых лифтов: 3, Год постройки: 1998, улица Барышиха, 37.349084, 55.844349
Свяжитесь со мной на счет цены
10 дн.
T55S844349L37S349084T

На карте


Условия сделки

Источник


Старт продаж

Возможно заинтересует