Top.Mail.Ru

Дубравная ул., д. 35

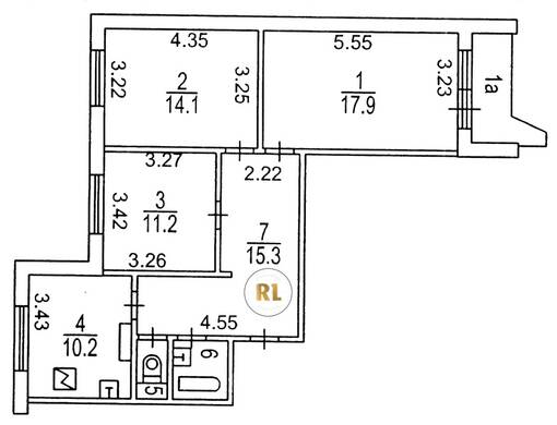
База каталог, Кол-во подъездов: 7, Отсутствует, П-44, Москва, Митино, Площадь парковки: 0, Пассажирский лифт: 7, От метро: 370, Северо-Западный, нет, Наименьшее кол-во этажей: 17, Наибольшее кол-во этажей: 17, Митино, Кол-во помещений: 479, Кол-во нежилых помещений: 7, Год ввода в эксплуатацию: 1994, 3-комн, Кол-во жилых помещений: 472, Не присвоен, дом 35, да, да, да, да, да, да, Отсутствует, Грузовых лифтов: 7, Год постройки: 1994, Дубравная улица, 37.358346, 55.844394
Свяжитесь со мной на счет цены
10 дн.
T55S844394L37S358346T

На карте


Условия сделки

Источник


Старт продаж

Возможно заинтересует