Top.Mail.Ru

Митинская ул., д. 25

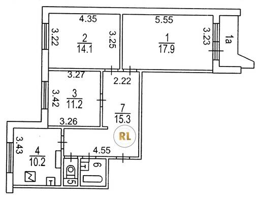
База каталог, Кол-во подъездов: 2, Имеется, П-44, Москва, Митино, Площадь парковки: 0, Пассажирский лифт: 2, От метро: 85, Северо-Западный, нет, Наименьшее кол-во этажей: 17, Наибольшее кол-во этажей: 17, Митино, Кол-во помещений: 130, Кол-во нежилых помещений: 2, Год ввода в эксплуатацию: 1994, 3-комн, Кол-во жилых помещений: 128, Не присвоен, дом 25, да, да, да, да, да, да, Имеется, Грузовых лифтов: 2, Год постройки: 1994, Митинская улица, 37.362855, 55.844430
Свяжитесь со мной на счет цены
10 дн.
T55S844430L37S362855T

На карте


Условия сделки

Источник


Старт продаж

Возможно заинтересует