Top.Mail.Ru

Авангардная ул., д. 6, к. 3

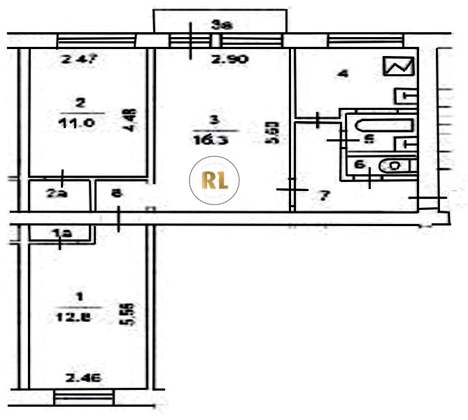
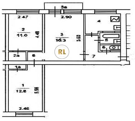
База каталог, Кол-во подъездов: 5, I-511, Москва, Головинский, Площадь парковки: 0, Пассажирский лифт: 0, От метро: 770, Северный, нет, Наименьшее кол-во этажей: 5, Наибольшее кол-во этажей: 5, Водный стадион, Кол-во помещений: 100, Кол-во нежилых помещений: 0, Год ввода в эксплуатацию: 1965, 3-комн, Кол-во жилых помещений: 100, E, дом 6, корпус 3, нет, да, да, да, да, да, Грузовых лифтов: 0, Год постройки: 1965, Авангардная улица, 37.492742, 55.844465
Свяжитесь со мной на счет цены
10 дн.
T55S844465L37S492742T

На карте


Условия сделки

Источник


Старт продаж

Возможно заинтересует