Top.Mail.Ru

Нелидовская ул., д. 9, к. 2

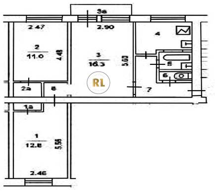
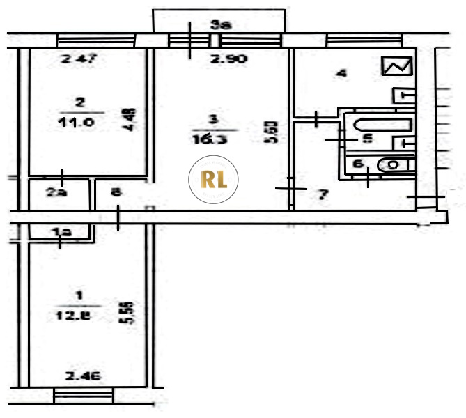
База каталог, Кол-во подъездов: 3, Отсутствует, I-511, Москва, Южное Тушино, Площадь парковки: 507, Пассажирский лифт: 0, От метро: 670, Северо-Западный, да, Наименьшее кол-во этажей: 5, Наибольшее кол-во этажей: 5, Сходненская, Кол-во помещений: 60, Кол-во нежилых помещений: 0, Год ввода в эксплуатацию: 1962, 3-комн, Кол-во жилых помещений: 60, Не присвоен, дом 9, корпус 2, нет, да, да, да, да, да, Отсутствует, Грузовых лифтов: 0, Год постройки: 1962, Нелидовская улица, 37.443281, 55.844693
Свяжитесь со мной на счет цены
10 дн.
T55S844693L37S443281T

На карте


Условия сделки

Источник


Старт продаж

Возможно заинтересует