Top.Mail.Ru

Нелидовская ул., д. 13, к. 2

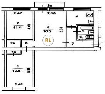
База каталог, Кол-во подъездов: 3, Отсутствует, I-511, Москва, Южное Тушино, Площадь парковки: 506, Пассажирский лифт: 0, От метро: 560, Северо-Западный, да, Наименьшее кол-во этажей: 5, Наибольшее кол-во этажей: 5, Сходненская, Кол-во помещений: 54, Кол-во нежилых помещений: 0, Год ввода в эксплуатацию: 1961, 3-комн, Кол-во жилых помещений: 54, Не присвоен, дом 13, корпус 2, да, да, да, да, да, да, Отсутствует, Грузовых лифтов: 0, Год постройки: 1961, Нелидовская улица, 37.442212, 55.844768
Свяжитесь со мной на счет цены
10 дн.
T55S844768L37S442212T

На карте


Условия сделки

Источник


Старт продаж

Возможно заинтересует