Top.Mail.Ru

Митинская ул., д. 27

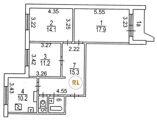
База каталог, Кол-во подъездов: 5, П-44, Москва, Митино, Площадь парковки: 0, Пассажирский лифт: 5, От метро: 137, Северо-Западный, нет, Наименьшее кол-во этажей: 1, Наибольшее кол-во этажей: 17, Митино, Кол-во помещений: 334, Кол-во нежилых помещений: 9, Год ввода в эксплуатацию: 1994, 3-комн, Кол-во жилых помещений: 325, Не присвоен, дом 27, да, да, да, да, да, да, Грузовых лифтов: 5, Год постройки: 1994, Митинская улица, 37.361732, 55.845107
Свяжитесь со мной на счет цены
10 дн.
T55S845107L37S361732T

На карте


Условия сделки

Источник


Старт продаж

Возможно заинтересует