Top.Mail.Ru

3-й Нижнелихоборский проезд, д. 4

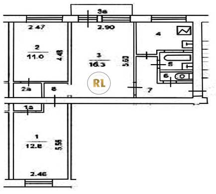
База каталог, Кол-во подъездов: 3, I-511, Москва, Тимирязевский, Площадь парковки: 0, Пассажирский лифт: 0, От метро: 860, Северный, нет, Наименьшее кол-во этажей: 5, Наибольшее кол-во этажей: 5, Окружная, Кол-во помещений: 43, Кол-во нежилых помещений: 0, Год ввода в эксплуатацию: 1960, 3-комн, Кол-во жилых помещений: 43, Не присвоен, дом 4, нет, да, да, да, да, да, Грузовых лифтов: 0, Год постройки: 1960, 3-й Нижнелихоборский проезд, 37.563790, 55.845183
Свяжитесь со мной на счет цены
10 дн.
T55S845183L37S563790T

На карте


Условия сделки

Источник


Старт продаж

Возможно заинтересует