Top.Mail.Ru

Нелидовская ул., д. 19

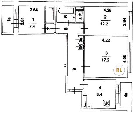
База каталог, Кол-во подъездов: 3, Отсутствует, П-30, Москва, Южное Тушино, Площадь парковки: 247, Пассажирский лифт: 6, От метро: 530, Северо-Западный, да, Наименьшее кол-во этажей: 12, Наибольшее кол-во этажей: 12, Сходненская, Кол-во помещений: 142, Кол-во нежилых помещений: 0, Год ввода в эксплуатацию: 1984, 3-комн, Кол-во жилых помещений: 142, Не присвоен, дом 19, да, да, да, да, да, да, Имеется, Грузовых лифтов: 0, Год постройки: 1984, Нелидовская улица, 37.437478, 55.845410
Свяжитесь со мной на счет цены
10 дн.
T55S845410L37S437478T

На карте


Условия сделки

Источник


Старт продаж

Возможно заинтересует