Top.Mail.Ru

Дубравная ул., д. 40, к. 2

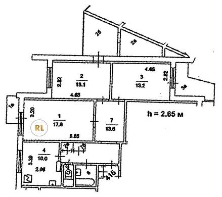
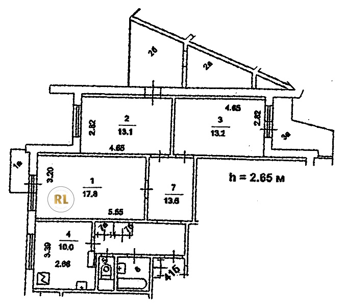
База каталог, Кол-во подъездов: 6, Имеется, П-3/17, Москва, Митино, Площадь парковки: 0, Пассажирский лифт: 6, От метро: 570, Северо-Западный, нет, Наименьшее кол-во этажей: 17, Наибольшее кол-во этажей: 17, Митино, Кол-во помещений: 410, Кол-во нежилых помещений: 3, Год ввода в эксплуатацию: 1994, 3-комн, Кол-во жилых помещений: 407, Не присвоен, дом 40, корпус 2, да, да, да, да, да, да, Имеется, Грузовых лифтов: 6, Год постройки: 1994, Дубравная улица, 37.352462, 55.845471
Свяжитесь со мной на счет цены
10 дн.
T55S845471L37S352462T

На карте


Условия сделки

Источник


Старт продаж

Возможно заинтересует