Top.Mail.Ru

Пулковская ул., д. 9

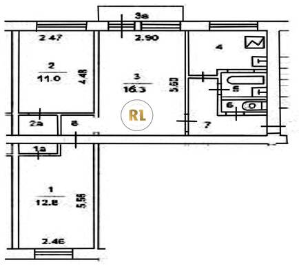
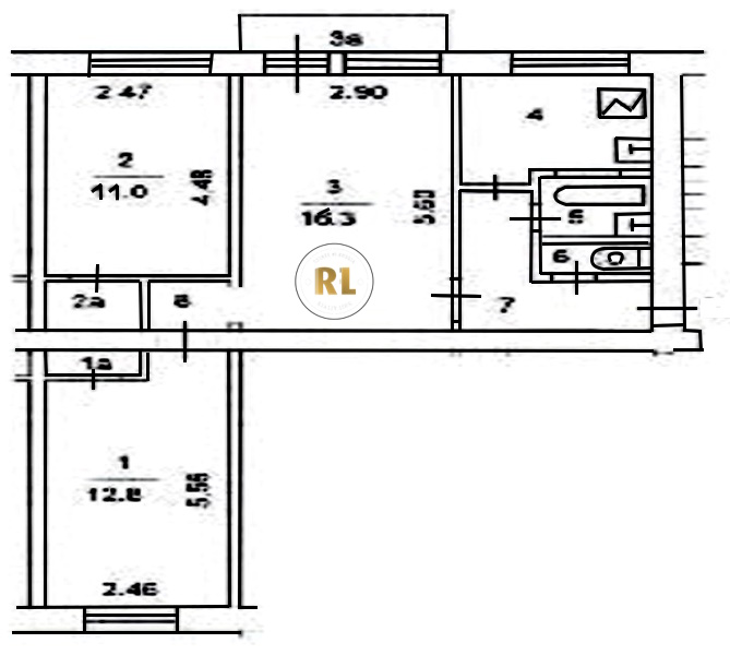
База каталог, Кол-во подъездов: 3, I-511, Москва, Головинский, Пассажирский лифт: 0, От метро: 720, Северный, да, Наименьшее кол-во этажей: 5, Наибольшее кол-во этажей: 5, Водный стадион, Кол-во помещений: 46, Кол-во нежилых помещений: 1, Год ввода в эксплуатацию: 1962, 3-комн, Кол-во жилых помещений: 45, E, дом 9, нет, да, да, да, да, да, Грузовых лифтов: 0, Год постройки: 1962, Пулковская улица, 37.484110, 55.845506
Свяжитесь со мной на счет цены
10 дн.
T55S845506L37S484110T

На карте


Условия сделки

Источник


Старт продаж

Возможно заинтересует