Top.Mail.Ru

Пулковская ул., д. 17

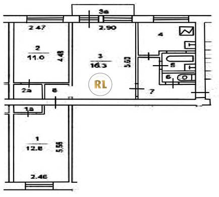
База каталог, Кол-во подъездов: 4, I-511, Москва, Головинский, Пассажирский лифт: 0, От метро: 800, Северный, да, Наименьшее кол-во этажей: 5, Наибольшее кол-во этажей: 5, Водный стадион, Кол-во помещений: 160, Кол-во нежилых помещений: 0, Год ввода в эксплуатацию: 1967, 3-комн, Кол-во жилых помещений: 160, дом 17, нет, да, да, да, да, да, Грузовых лифтов: 0, Год постройки: 1967, Пулковская улица, 37.486158, 55.845557
Свяжитесь со мной на счет цены
10 дн.
T55S845557L37S486158T

На карте


Условия сделки

Источник


Старт продаж

Возможно заинтересует