Top.Mail.Ru

Смольная ул., д. 9

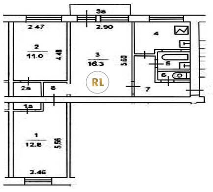
База каталог, Кол-во подъездов: 6, I-511, Москва, Головинский, Пассажирский лифт: 0, От метро: 1010, Северный, да, Наименьшее кол-во этажей: 5, Наибольшее кол-во этажей: 5, Водный стадион, Кол-во помещений: 119, Кол-во нежилых помещений: 0, Год ввода в эксплуатацию: 1966, 3-комн, Кол-во жилых помещений: 119, С, дом 9, нет, да, да, да, да, да, Грузовых лифтов: 0, Год постройки: 1966, Смольная улица, 37.496569, 55.845663
Свяжитесь со мной на счет цены
10 дн.
T55S845663L37S496569T

На карте


Условия сделки

Источник


Старт продаж

Возможно заинтересует