Top.Mail.Ru

проезд Черепановых, д. 72, к. 1

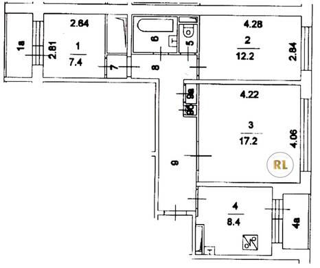
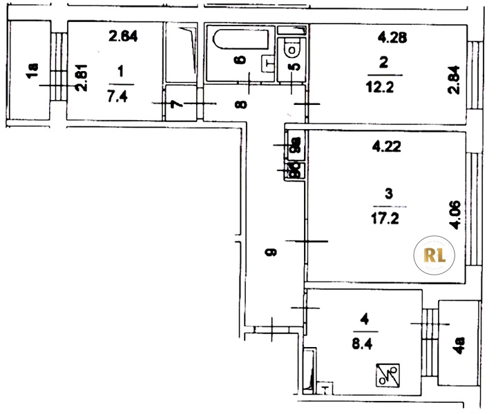
База каталог, Кол-во подъездов: 3, П-30, Москва, Коптево, Площадь парковки: 0, Пассажирский лифт: 6, От метро: 320, Северный, нет, Наименьшее кол-во этажей: 12, Наибольшее кол-во этажей: 12, Лихоборы, Кол-во помещений: 141, Кол-во нежилых помещений: 2, Год ввода в эксплуатацию: 1981, 3-комн, Кол-во жилых помещений: 139, В, дом 72, корпус 1, да, да, да, да, да, да, Грузовых лифтов: 0, Год постройки: 1981, проезд Черепановых, 37.555175, 55.845946
Свяжитесь со мной на счет цены
10 дн.
T55S845946L37S555175T

На карте


Условия сделки

Источник


Старт продаж

Возможно заинтересует