Top.Mail.Ru

Митинская ул., д. 33, к. 2

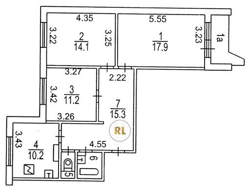
База каталог, Кол-во подъездов: 4, Имеется, П-44, Москва, Митино, Площадь парковки: 0, Пассажирский лифт: 4, От метро: 430, Северо-Западный, нет, Наименьшее кол-во этажей: 17, Наибольшее кол-во этажей: 17, Митино, Кол-во помещений: 273, Кол-во нежилых помещений: 2, Год ввода в эксплуатацию: 1993, 3-комн, Кол-во жилых помещений: 271, Не присвоен, дом 33, корпус 2, да, да, да, да, да, да, Имеется, Грузовых лифтов: 4, Год постройки: 1993, Митинская улица, 37.355121, 55.846254
Свяжитесь со мной на счет цены
10 дн.
T55S846254L37S355121T

На карте


Условия сделки

Источник


Старт продаж

Возможно заинтересует