Top.Mail.Ru

Авангардная ул., д. 10

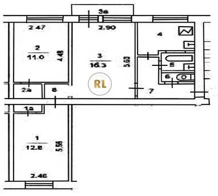
База каталог, Кол-во подъездов: 5, I-511, Москва, Головинский, Пассажирский лифт: 0, От метро: 1010, Северный, да, Наименьшее кол-во этажей: 5, Наибольшее кол-во этажей: 5, Водный стадион, Кол-во помещений: 185, Кол-во нежилых помещений: 0, Год ввода в эксплуатацию: 1968, 3-комн, Кол-во жилых помещений: 185, дом 10, нет, да, да, да, да, да, Грузовых лифтов: 0, Год постройки: 1968, Авангардная улица, 37.490569, 55.846275
Свяжитесь со мной на счет цены
10 дн.
T55S846275L37S490569T

На карте


Условия сделки

Источник


Старт продаж

Возможно заинтересует