Top.Mail.Ru

Парусный проезд, д. 15

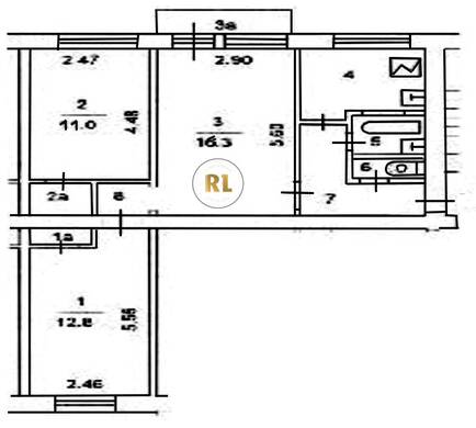
База каталог, Кол-во подъездов: 4, Отсутствует, I-511, Москва, Южное Тушино, Площадь парковки: 75, Пассажирский лифт: 0, От метро: 600, Северо-Западный, да, Наименьшее кол-во этажей: 5, Наибольшее кол-во этажей: 5, Сходненская, Кол-во помещений: 64, Кол-во нежилых помещений: 0, Год ввода в эксплуатацию: 1966, 3-комн, Кол-во жилых помещений: 64, Не присвоен, дом 15, нет, да, да, да, да, да, Имеется, Грузовых лифтов: 0, Год постройки: 1966, Парусный проезд, 37.446848, 55.846310
Свяжитесь со мной на счет цены
10 дн.
T55S846310L37S446848T

На карте


Условия сделки

Источник


Старт продаж

Возможно заинтересует