Top.Mail.Ru

улица Барышиха, д. 29

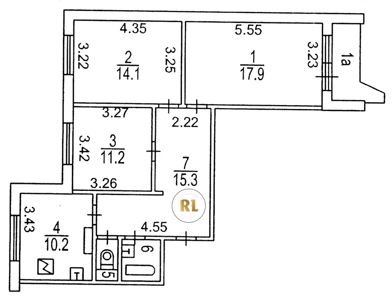
База каталог, Кол-во подъездов: 2, Имеется, П-44, Москва, Митино, Площадь парковки: 0, Пассажирский лифт: 2, От метро: 1100, Северо-Западный, нет, Наименьшее кол-во этажей: 16, Наибольшее кол-во этажей: 16, Митино, Кол-во помещений: 128, Кол-во нежилых помещений: 1, Год ввода в эксплуатацию: 1999, 3-комн, Кол-во жилых помещений: 127, Не присвоен, дом 29, нет, да, да, да, да, нет, Имеется, Грузовых лифтов: 2, Год постройки: 1999, улица Барышиха, 37.344745, 55.846659
Свяжитесь со мной на счет цены
10 дн.
T55S846659L37S344745T

На карте


Условия сделки

Источник


Старт продаж

Возможно заинтересует