Top.Mail.Ru

Митинская ул., д. 38

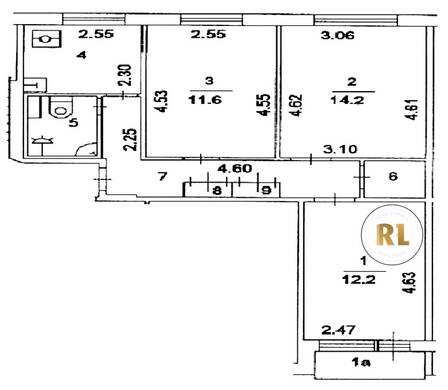
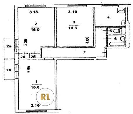
База каталог, Кол-во подъездов: 4, Отсутствует, II-49Д, Москва, Митино, Площадь парковки: 0, Пассажирский лифт: 4, От метро: 171, Северо-Западный, нет, Наименьшее кол-во этажей: 9, Наибольшее кол-во этажей: 9, Митино, Кол-во помещений: 143, Кол-во нежилых помещений: 2, Год ввода в эксплуатацию: 1976, 3-комн, Кол-во жилых помещений: 141, Не присвоен, дом 38, да, да, да, да, да, да, Имеется, Грузовых лифтов: 0, Год постройки: 1976, Митинская улица, 37.362972, 55.846825
Свяжитесь со мной на счет цены
10 дн.
T55S846825L37S362972T

На карте


Условия сделки

Источник


Старт продаж

Возможно заинтересует