Top.Mail.Ru

улица Барышиха, д. 33

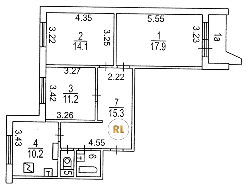
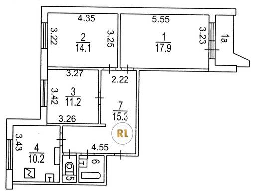
База каталог, Кол-во подъездов: 4, Отсутствует, П-44, Москва, Митино, Площадь парковки: 0, Пассажирский лифт: 4, От метро: 1220, Северо-Западный, нет, Наименьшее кол-во этажей: 14, Наибольшее кол-во этажей: 14, Митино, Кол-во помещений: 225, Кол-во нежилых помещений: 3, Год ввода в эксплуатацию: 1998, 3-комн, Кол-во жилых помещений: 222, Не присвоен, дом 33, нет, да, да, да, да, нет, Имеется, Грузовых лифтов: 4, Год постройки: 1998, улица Барышиха, 37.343236, 55.847235
Свяжитесь со мной на счет цены
10 дн.
T55S847235L37S343236T

На карте


Условия сделки

Источник


Старт продаж

Возможно заинтересует