Top.Mail.Ru

улица Барышиха, д. 28

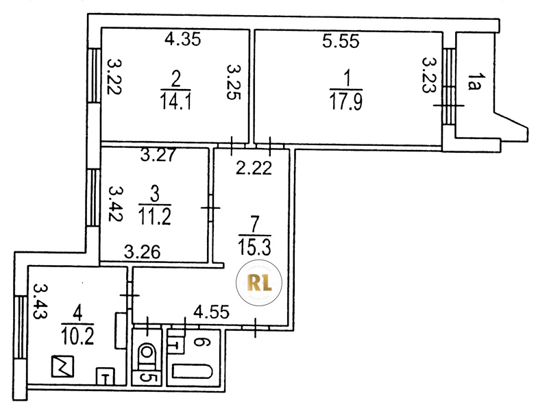
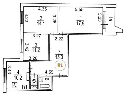
База каталог, Кол-во подъездов: 4, Имеется, П-44, Москва, Митино, Площадь парковки: 0, Пассажирский лифт: 4, От метро: 1030, Северо-Западный, нет, Наименьшее кол-во этажей: 14, Наибольшее кол-во этажей: 14, Митино, Кол-во помещений: 225, Кол-во нежилых помещений: 2, Год ввода в эксплуатацию: 1993, 3-комн, Кол-во жилых помещений: 223, Не присвоен, дом 28, нет, да, да, да, да, да, Имеется, Грузовых лифтов: 4, Год постройки: 1993, улица Барышиха, 37.345661, 55.847321
Свяжитесь со мной на счет цены
10 дн.
T55S847321L37S345661T

На карте


Условия сделки

Источник


Старт продаж

Возможно заинтересует