Top.Mail.Ru

Аэродромная ул., д. 10, к. 2

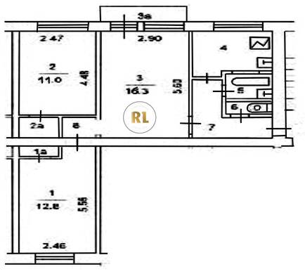
База каталог, Кол-во подъездов: 4, Имеется, I-511, Москва, Южное Тушино, Площадь парковки: 70, Пассажирский лифт: 0, От метро: 520, Северо-Западный, да, Наименьшее кол-во этажей: 5, Наибольшее кол-во этажей: 5, Сходненская, Кол-во помещений: 80, Кол-во нежилых помещений: 0, Год ввода в эксплуатацию: 1960, 3-комн, Кол-во жилых помещений: 80, Не присвоен, дом 10, корпус 2, да, да, да, да, да, да, Имеется, Грузовых лифтов: 0, Год постройки: 1960, Аэродромная улица, 37.434756, 55.847397
Свяжитесь со мной на счет цены
10 дн.
T55S847397L37S434756T

На карте


Условия сделки

Источник


Старт продаж

Возможно заинтересует