Top.Mail.Ru

Смольная ул., д. 19, к. 1

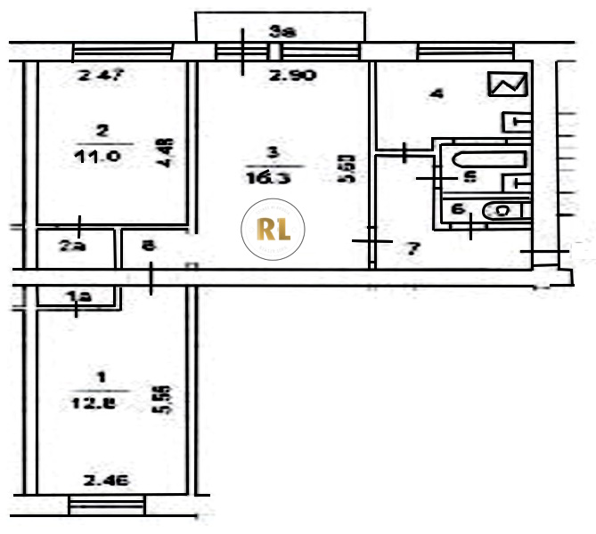
База каталог, Кол-во подъездов: 5, I-511, Москва, Головинский, Пассажирский лифт: 0, От метро: 1270, Северный, да, Наименьшее кол-во этажей: 5, Наибольшее кол-во этажей: 5, Водный стадион, Кол-во помещений: 100, Кол-во нежилых помещений: 0, Год ввода в эксплуатацию: 1964, 3-комн, Кол-во жилых помещений: 100, дом 19, корпус 1, нет, да, да, да, да, нет, Грузовых лифтов: 0, Год постройки: 1964, Смольная улица, 37.497306, 55.847493
Свяжитесь со мной на счет цены
10 дн.
T55S847493L37S497306T

На карте


Условия сделки

Источник


Старт продаж

Возможно заинтересует